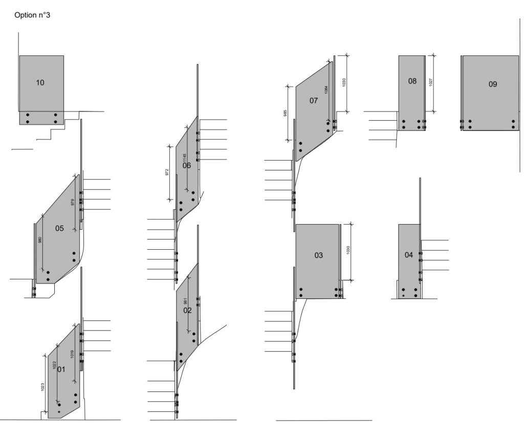
Relevé d’un escalier + création de plans de fabrication

  • Pour ce projet de rénovation chez un particulier, nous avons utilisé le PROLINER pour relever les limons existants.
  • Sur la base de nos mesures, nous avons dessiné plusieurs variantes à proposer au client.
  • Nous avons également produit ces garde-corps provisoires en panneaux MDF de 16 mm sur notre CNC pour garantir la sécurité du site pendant la commande des verres.