Relevé 3D à Genève pour un projet de rénovation de toiture

Introduction

Situé au cœur de Genève, l’immeuble Templiers 5 a fait l’objet d’un relevé 3D complet dans le cadre d’un futur projet de rénovation de toiture. Mandaté par la régie Pillet Renéau, Swiss-scan a été chargé de produire des plans numériques précis destinés à la préparation des soumissions et à la planification des travaux. L’objectif principal était de disposer d’une base fiable et exhaustive pour les architectes et ingénieurs intervenant sur le projet.

Notre intervention

Pour ce mandat, nous avons utilisé un laser scanner Leica BLK360, garantissant une précision millimétrique et une couverture complète du bâtiment.
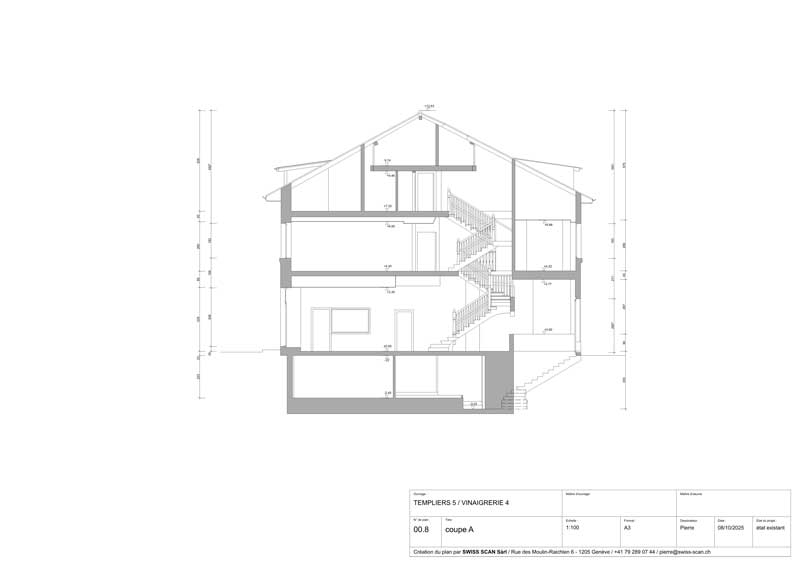
Le relevé a porté sur l’ensemble de l’immeuble, incluant :

  • un plan détaillé par étage,

  • les élévations de façades,

  • deux coupes (transversale et longitudinale),

  • ainsi qu’une vue en plan de la toiture.

Les données ont ensuite été traitées et assemblées afin de générer des plans 2D exploitables par les différents intervenants du projet.