Skip to content
Services
Laser Scanner
Drone
Photo 360°
Proliner
Plan 2D
Model 3D BIM
Projets
Blog Swiss-scan
Contact
Services
Laser Scanner
Drone
Photo 360°
Proliner
Plan 2D
Model 3D BIM
Projets
Blog Swiss-scan
Contact
Envelope
Phone-square-alt
Whatsapp
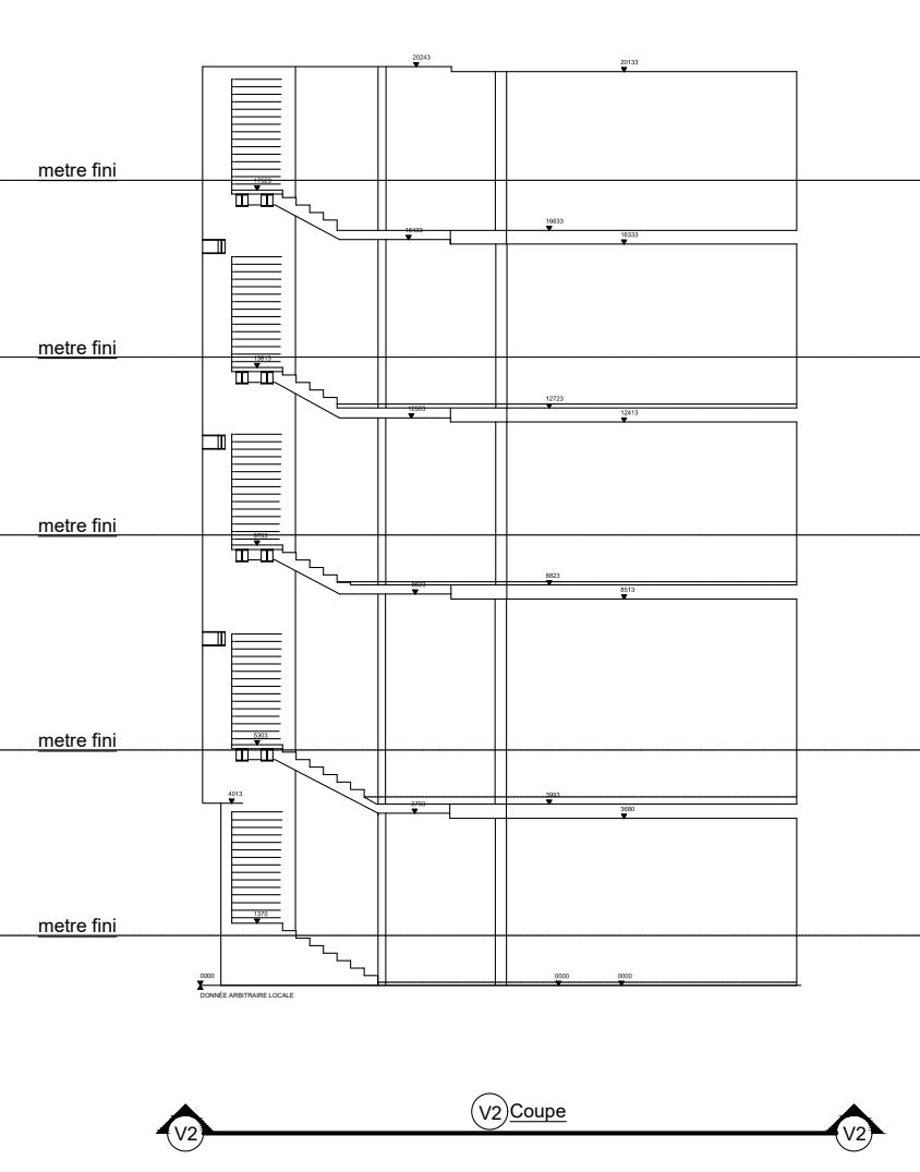
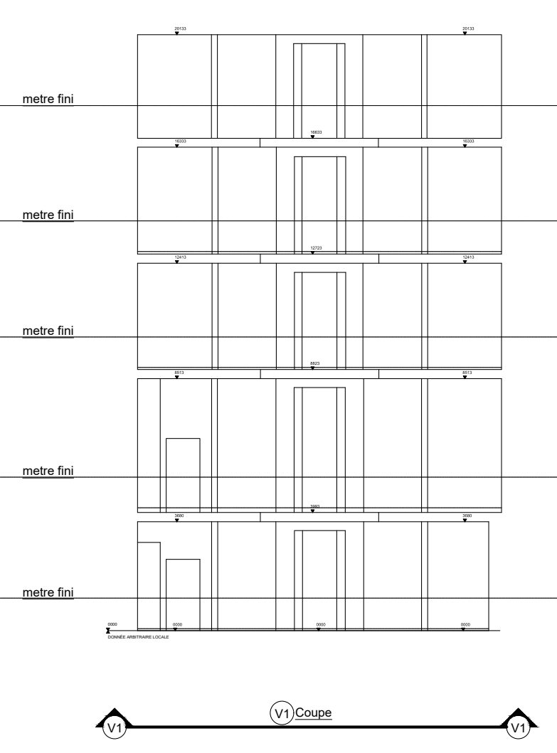
Relevé vitrine Dior à Genève
September 12, 2025
Dior – Rue du Rhône – Genève
Pour ce projet de rénovation, nous avons utilisé le LASER SCANNER pour relever sur cinq étages afin de dessiner et produire un verre central sur toute la hauteur.
Nous avons également pris des photos à 360° pour faciliter la compréhension du site.