PLANS D'ARCHITECTE 2D

Chez SWISS-SCAN, nous transformons nos relevés en plans d’architecte 2D précis, adaptés à vos besoins spécifiques. Chaque détail est soigneusement positionné pour vous fournir une base solide pour votre projet. Que vous soyez un particulier ou une entreprise, nos plans vous aident à prendre des décisions éclairées.

Notre engagement envers la qualité et la satisfaction client nous distingue. Faites confiance à SWISS-SCAN pour des plans d’architecte 2D qui répondent à vos attentes et vous accompagnent tout au long de votre projet.

Plan de principe

Un plan de principe est un document schématique qui résume de manière simplifiée et visuelle les idées fondamentales, les concepts ou les étapes clés d’un projet ou d’un processus. Il est utilisé au début d’un projet pour explorer différentes options, communiquer les idées et prendre des décisions préliminaires. Ce type de plan est moins détaillé que les plans finaux et sert de base pour le développement ultérieur de plans plus précis.

Plan d'architecte

Un plan d’architecte est un document graphique qui représente les détails spatiaux d’un projet architectural. Il inclut les éléments structuraux, les dimensions, les espaces intérieurs et extérieurs, ainsi que les installations électriques et de plomberie. Il est créé en fonction des besoins du client, des réglementations locales et des caractéristiques du site. Ce document est essentiel à toutes les étapes de conception et de construction d’un bâtiment.

 

Plan de construction

Un plan de construction est un document détaillé qui guide les équipes de construction à travers les différentes étapes d’un projet. Ils sont généralement établis sur la base d’un relevé du bâtiment existant et permettent d’affiner les dimensions réelles du projet. Ils fournissent des directives sur les dimensions, les matériaux, les techniques de construction, et l’emplacement des installations.

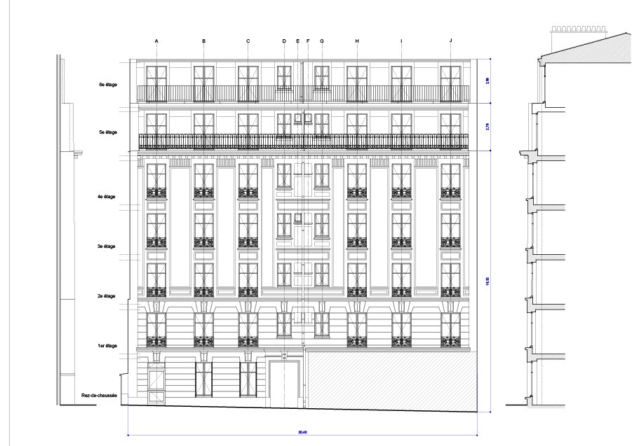
PLAN DE FACADE

Les relevés de façade sont essentiels dans le processus de conception et de construction d’un bâtiment. Ils permettent à l’administration de vérifier que le projet respecte les règles d’urbanisme, nationales ou locales, en ce qui concerne l’aspect extérieur du bâtiment.

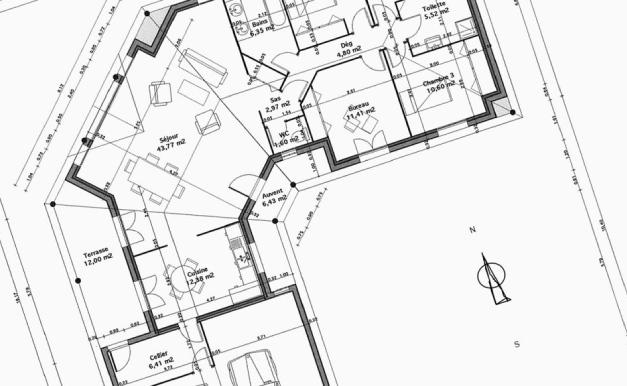
PLAN D’ETAGE

Le plan d’étage d’un bâtiment est indispensable lors de la demande de permis de construire ou de déclaration préalable de travaux. Il offre une représentation graphique détaillée de la disposition des pièces à l’intérieur du bâtiment, facilitant ainsi la prise de décision et l’organisation des travaux.

 

PLAN 2D

Les plans jouent un rôle crucial dans le processus de construction en fournissant une représentation détaillée de l’aménagement intérieur et extérieur du bâtiment.

Objectifs du projet

Définir clairement l’objectif de la création des plans 2D, par exemple la conception architecturale d’un bâtiment, la modélisation d’un produit, etc.

Description du projet

Fournir une description détaillée du projet, y compris les spécifications, les exigences fonctionnelles et esthétiques, ainsi que les contraintes éventuelles.

Livraisons attendues

Préciser les livrables attendus, tels que les plans 2D pour chaque étage d’un bâtiment, les plans des facades, plan de toiture ou plan topographique.

Spécifications techniques

Tel que l’échelle 1:100 pour les demandes d’autorisation ou 1:50 pour les plans d’intérieur, les dimensions requises, les normes de représentation, les formats de fichiers, etc.

Délais

Définir les délais pour la réalisation, en précisant les dates de début et de fin du livrable, ainsi que les échéances intermédiaires pour les différentes phases si besoin.

Confidentialité

Inclure des clauses de confidentialité pour protéger les informations sensibles échangées dans le cadre du projet.

Écoutez nos clients

Nos clients adorent travailler avec nous, lisez simplement ce qu'ils ont à dire !