Relevé 3D de la Dîme de Pampigny pour un projet d’extension

Introduction

Situé au cœur du village de Pampigny (VD), ce bâtiment historique fait partie du patrimoine bâti typique de la région. Dans le cadre d’un projet d’extension envisagé, Swiss-scan a été mandaté pour réaliser un relevé 3D complet de la Dîme. L’objectif : documenter avec précision l’existant et fournir une base fiable pour la conception et la planification du futur projet architectural.

Notre intervention

Pour ce relevé, notre équipe a utilisé un laser scanner 3D de haute précision afin de capturer l’ensemble des volumes intérieurs et extérieurs du bâtiment.
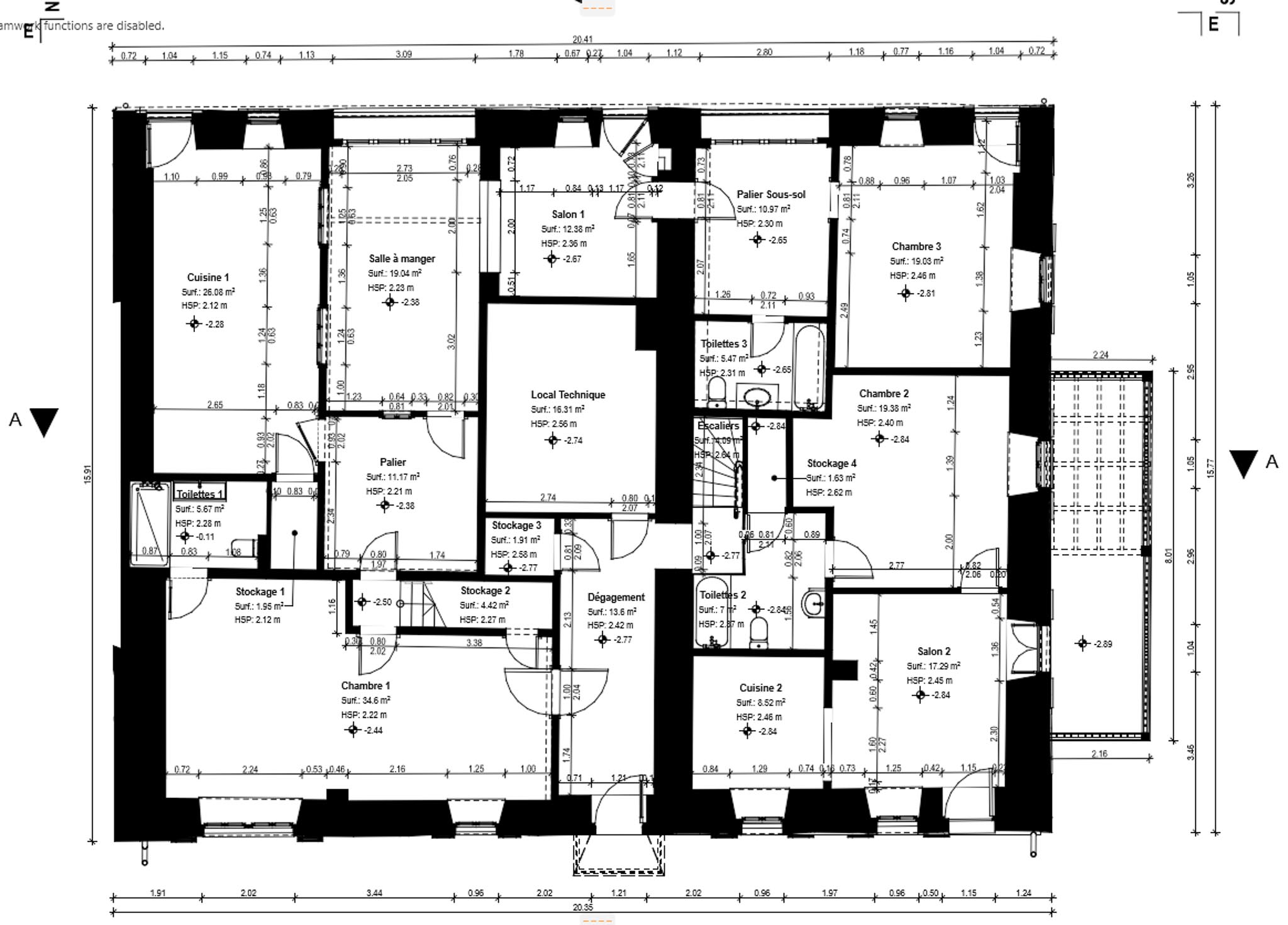
Les données acquises ont permis la création d’un modèle 3D détaillé sur Archicad, offrant une visualisation fidèle du bâtiment et facilitant les études de faisabilité.
En complément, une visite TruView interactive a été générée, permettant une exploration virtuelle des lieux et une prise de mesure à distance.

Résultats et bénéfices

Grâce à ce relevé 3D, le client dispose désormais d’une base numérique précise pour le développement du projet d’extension.
Le modèle Archicad et la visite TruView facilitent la collaboration entre les différents intervenants (architectes, ingénieurs, autorités communales) et garantissent un gain de temps lors des phases de conception et de validation.
La documentation produite assure également une conservation numérique du patrimoine existant, utile pour tout futur projet ou suivi de l’état du bâtiment.

Vous avez un bâtiment à relever ?
Contactez Swiss-scan pour un relevé 3D précis, une modélisation adaptée à vos besoins et des livrables professionnels prêts à intégrer dans vos outils BIM.

relevé 3D, modélisation BIM, plan 2D, laser scanner, TruView, Swiss-scan, Suisse romande, architecte, rénovation, construction, bâtiment historique, patrimoine bâti, Pampigny.